
















Exclusivitate
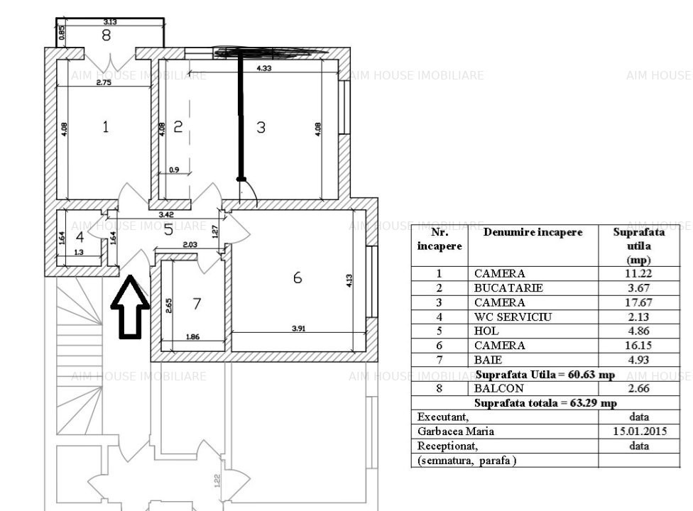
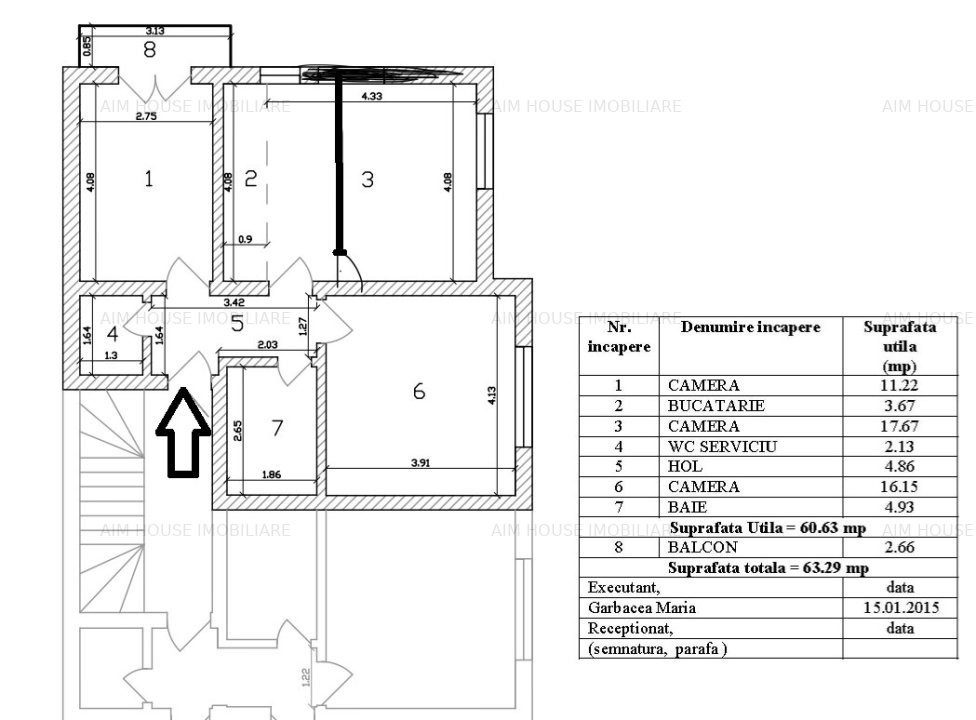
Vă propunem spre închiriere un apartament cochet cu 3 camere, semidecomandat, cu o suprafață de 63,29 mp utili + balcon, situat la etajul 1 într-un imobil construit în 2015 (P+M), într-o zonă liniștită și bine conectată din Sector 1 – Bucureștii Noi.
🔹 Caracteristici apartament:
Foarte bine întreținut – finisaje moderne: gresie, faianță, parchet, tâmplărie termopan
Mobilat și utilat complet
Centrală termică proprie – confort termic și costuri reduse
2 băi, dintre care una cu cadă
Living luminos, dormitor, bucătărie închisă
Electrocasnice noi: mașină de spălat, frigider, cuptor cu microunde
Aer condiționat, cablu TV
Contorizare individuală pentru toate utilitățile
Confort 1
📍 Avantaje locație – puncte forte ale zonei:
🚇 Metrou Laminorului – aprox. 8 minute pietonal
🌳 Parcul Bazilescu – aprox. 12 minute de mers pe jos
🛒 Supermarketuri, farmacii, bănci, restaurante în imediata apropiere
🏫 Școli și grădinițe în zonă
🚗 Acces rapid către Bd. Bucureștii Noi, Piața Victoriei, zona de nord (Aviatorilor – Pipera)
Zonă liniștită, aerisită, ideală pentru locuit pe termen lung
💰 Preț și condiții:
💶 Chirie: 680 €/lună – ușor negociabil
🔐 Se achită: 1 lună chirie + 1 lună garanție
🏢 Comision agenție: 50% din prima lună de chirie
📄 Contract minim 12 luni
❌ Proprietarul nu acceptă animale de companie
✅ Concluzie:
Un apartament complet pregătit pentru mutare, situat într-o zonă excelentă din Sector 1, cu acces rapid la metrou și parc, ideal pentru cuplu, familie sau profesioniști care caută confort, liniște și conectivitate.
EN:
Exclusive Listing
We are pleased to offer for rent a cozy 3-room semi-detached apartment, with a total usable area of 63.29 sqm including balcony, located on the 1st floor of a 2015-built building (GF + 1), in a quiet and well-connected area of Sector 1 – Bucharestii Noi.
🔹 Apartment features:
Very well maintained, with modern finishes: ceramic tiles, parquet flooring, double-glazed windows
Fully furnished and fully equipped
Individual gas boiler – efficient heating and low maintenance costs
2 bathrooms, one equipped with a bathtub
Bright living room, bedroom, separate fully equipped kitchen
Brand new appliances: washing machine, refrigerator, microwave oven
Air conditioning, cable TV
Individual metering for all utilities
Comfort class 1
📍 Location advantages:
🚇 Laminorului Metro Station – approx. 8 minutes walking
🌳 Bazilescu Park – approx. 12 minutes on foot
🛒 Supermarkets, pharmacies, banks, restaurants nearby
🏫 Schools and kindergartens in the area
🚗 Quick access to Bucharestii Noi Blvd., Piața Victoriei, and the northern business areas (Aviatorilor – Pipera)
Quiet, green residential neighborhood, ideal for long-term living
💰 Rental terms:
💶 Monthly rent: €680 – slightly negotiable
🔐 Payment: 1 month rent + 1 month security deposit
🏢 Agency fee: 50% of the first month’s rent
📄 Minimum rental period: 12 months
❌ Pets are not accepted
✅ Summary:
A move-in ready apartment, perfectly located in one of the most sought-after residential areas of Sector 1, ideal for couples, families, or professionals looking for comfort, tranquility, and excellent connectivity.