













🏡 Exclusiv! Prima închiriere!
Imobil localizat foarte aproape de granița cu Sectorul 6 și complexul rezidențial Apusului.
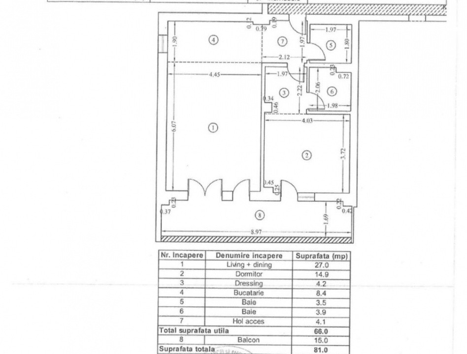
Vă propunem spre închiriere un apartament cu 2 camere, în Complex Citadella Garden, cu suprafață utilă de 66 mp + balcon de 15 mp = 81 mp.
Configurație: 2 băi, decomandat, bucătărie deschisă, situat la etajul 4/5 într-un ansamblu rezidențial nou (2022), prevăzut cu barieră și acces auto pe bază de telecomandă.
________________________________________
✨ Compartimentare & suprafețe
• Living + dining – 27.0 mp 🛋️
• Dormitor matrimonial cu baie proprie – 14.9 mp 🛏️
• Dressing – 4.2 mp 👗
• Bucătărie – 8.4 mp 🍽️
• Baie secundară – 3.5 mp 🛁
• Baie matrimonială – 3.9 mp 🚿
• Hol acces – 4.1 mp
• Balcon – 15.0 mp 🌿
________________________________________
✨ Dotări și finisaje
• Centrală proprie ♨️
• TV 🖥️
• 2 aparate de aer condiționat ❄️
• Mașină de spălat rufe + mașină de spălat vase
• Mobilat și utilat complet 🛋️
• Contorizare individuală pentru toate utilitățile
• Imobil dotat cu lift
________________________________________
📍 Localizare excelentă
Acces rapid la Mega Image, Carrefour, parc, restaurant, spălătorie auto.
La 2–3 minute pietonal stația STB Str. Crinului.
Metrou Păcii la 2,4 km (≈33 minute pietonal).
________________________________________
🤝 Profil chiriași
Proprietatea este potrivită pentru persoane calme, responsabile și respectuoase, care apreciază liniștea și armonia blocului.
Nu este adecvată pentru activități zgomotoase sau petreceri. 🌿🙂
________________________________________
📝 Condiții de închiriere
✔️ Prima închiriere
✔️ Contract minim: 1 an
✔️ La semnare: 1 lună chirie + 1 lună garanție
✔️ Loc de parcare proprietate inclus în preț 🚗
✔️ Disponibil imediat
English version:
🏡 Exclusive! First rental!
The property is located very close to the border of Sector 6 and the Apusului residential area.
We offer for rent a 2-room apartment in the Citadella Garden Complex, with a usable area of 66 sqm + 15 sqm balcony = 81 sqm total.
Layout: 2 bathrooms, fully detached, open-space kitchen, located on the 4th floor out of 5 in a newly built residential complex (2022), equipped with a barrier and remote-controlled car access.
________________________________________
✨ Layout & Areas
• Living + dining – 27.0 sqm 🛋️
• Master bedroom with en-suite bathroom – 14.9 sqm 🛏️
• Dressing – 4.2 sqm 👗
• Kitchen – 8.4 sqm 🍽️
• Secondary bathroom – 3.5 sqm 🛁
• Master bathroom – 3.9 sqm 🚿
• Entrance hall – 4.1 sqm
• Balcony – 15.0 sqm 🌿
________________________________________
✨ Features & Finishes
• Individual gas boiler ♨️
• TV 🖥️
• 2 air conditioning units ❄️
• Washing machine + dishwasher
• Fully furnished and equipped 🛋️
• Individual metering for all utilities
• Building equipped with elevator
________________________________________
📍 Excellent Location
Quick access to Mega Image, Carrefour, park, restaurant, car wash.
Only 2–3 minutes walking to the STB bus stop on Crinului Street.
Păcii Metro Station is 2.4 km away (≈33 minutes walking).
________________________________________
🤝 Tenant Profile
The property is suitable for calm, responsible, respectful individuals who appreciate a peaceful living environment.
Not suitable for noisy activities or parties. 🌿🙂
________________________________________
📝 Rental Conditions
✔️ First rental
✔️ Minimum contract: 1 year
✔️ Upon signing: 1 month rent + 1 month deposit
✔️ Private parking space included in the price 🚗
✔️ Available immediately